Домашен тример: 4 опции за производство
Всички собственици на лични парцели са изправени пред проблема за косене на тревата, която расте буквално пред очите ни, а през сезона е необходимо да прецизираме парцела си няколко пъти. Конвенционалната ръчна шпакла е заменена от газови тримери и електрически тримери. Но цената за тях не е намалена и е доста забележима за много собственици на летни къщи и частни къщи. Занаятчиите все пак са открили изход от тази ситуация и са се научили как да правят тримери с техните ръце буквално от импровизирани средства, като използват бензол и електрически инструменти, които не са предназначени за тези цели.
съдържание
От мелницата
Най-често се прави домашно електрическо тримерно устройство въз основа на обикновения шлифовъчен инструмент, който се предлага от всеки домашен занаятчия. Този инструмент е почти идеален за преработка на тример.Той има повече мощност от апаратите за съхранение и по-голям брой съоръжения на минута. Освен това стандартната гайка, използвана в мелницата за закрепване на дисковете, вече има дупки, през които линията (въжето) може лесно да се вкара.

Така че, има много възможности, от които да се направи бар (derzhak). Най-лесният е по-дълъг, отколкото за лопата дървена пръчка, До края му в правилния ъгъл е прикрепен с обичайната българска канцелария. Линията се поставя в 2 дупки на гайката, след което се усуква. Така че след няколко минути ще получите тример, който може да бъде косене без проблеми.
За безопасността при работа с домашно устройство можете да го подобрите, като направите защитна обвивка (как да направите това, ще бъде обсъдено по-късно).

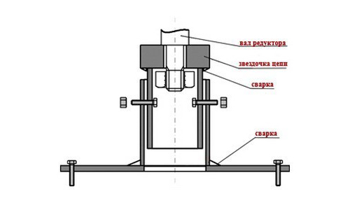
За напреднали майстори със заваръчна машина е възможно да се посъветва по-усъвършенстван дизайн за закрепване на мелницата и защитната обвивка. Той е направен алуминиева тръба (служи като държач) и метален квадратен профил. Погледнете фигурата по-долу, можете да разберете принципа за производство на притежателя.

Българката е прикрепена към държача с вградени болтове в дупките,които са предназначени за прикрепване на дръжката към устройството.

Следната снимка показва как изглежда този дизайн отдолу.

След това, естествената обвивка на мелницата се отстранява и вместо диск се инсталира въже за риболов или метален дисков нож.
Между другото, е възможно да закрепите държача (пръта) към отворите за закрепване на дръжката, когато искате да направите обикновен тример, който е лесен за монтаж и също толкова лесно разглобяван, ако трябва да използвате машината по предназначение.

За да улесните задържането на тримерата по време на работа и не се върти около оста на бара, можете да я прикрепите странична дръжкаизработени от огънати тръби.

От прахосмукачка
Машината за триене от двигателя от прахосмукачката се извършва по същия начин, както при машината за смилане. Двигателят трябва да бъде монтиран върху пръчка и трябва да бъдат закрепени към вала на двигателя или ножове, или пластмасов или метален диск, в който е поставена въдицата. Отгоре режещият инструмент е затворен със защитна обвивка.

Така че прахът и малките частици от косената трева не попадат в двигателя, взет от прахосмукачката, той също може да бъде скрит в пластмасов корпус от канализационната тръбакакто е показано на следващата снимка.

Тъй като двигателят във прахосмукачката е с висока скорост, се нуждае осигурява охлаждане, Следователно под шайбата, в която е поставена линията, се препоръчва да вмъкнете домашен диск с отвори и извити остриета, така че да действа като вентилатор, който създава вакуум. Необходимо е въздухът да се всмуква през маркуча отгоре и да охлажда двигателя.

За да се улесни натоварването на ръцете на оператора на косачката, устройството може поставен на инвалидна количка, В този случай ще имате нещо като косачка.

За закрепване на линията може да използвате или шайба с подходящ отвор, или пластмасово колело от количката.

От тренировката
Най-простата косачка в минути е направена от свредла или отвертка, Но първо трябва да направите нож от наточена метална плоча с отвор, пробит в центъра. В този отвор се вкарва болт и се затяга с гайка.

След това болтът се фиксира в патронника и тримерът е готов.

Тъй като сондата с тази дюза няма защитна обвивка, такъв инструмент е доста опасен за потребителя.За да се предпазите, можете да поставите тренировката, като например мелницата (както е посочено по-горе) върху лопатка или върху алуминиева тръба.

Освен това, за да се защити потребителят на косачката срещу ножове, корпусът може да бъде закрепен към свредлото (монтиран на пластмасова тръба и поставен върху корпуса на устройството).
Пробийте към шината и я закрепете със скоби.


От резачка
За моторни триони вече са разработени много различни дюзи, които разширяват възможностите на това звено, например култиватор, свредло, моторно лодче, както и дюза на коса. Как изглежда, можете да видите в това видео, В случай, че искате да направите тример от резачка, максималната, която можете да направите е косачка за косене на трева на колела, тъй като двигателят на модула е доста тежък и прилагането на гореописаните варианти на производствени тримери (с долната подредба на задвижването) към него няма да работи.
Поради това колата първо се произвежда. Може да се заварява от ъгъл 25х25 мм. Размерите на рамката трябва да са 500x600 мм. Колелата са монтирани на ъглите на рамката.

Освен това е необходимо да извадите "кормилното колело" и гумата от уреда. Ръкохватките могат да бъдат направени от водопроводни тръби. "Воланът" е закрепен към него.Също така е необходимо да удължите маркуча за гориво и газовия кабел.
Когато монтирате дръжката на количката, трябва да обърнете внимание на факта, че тя не се припокрива със стартера.
Бензиновият двигател е монтиран (завинтен през отворите за закрепване на гумата) на рамката, така че скоростната кутия да е завъртяна на 90 градуса и валът да е на дъното.
Сега остава само да се фиксира върху вала на уреда режещ инструмент, Това се прави по следния начин.
- Малка част от тръбата с дължина 80 мм и диаметър 50 мм трябва да бъде заварена към "звездичката" на апарата. Тръбата е по-добре да се нарязва на струг, така че краищата са идеално гладки.
- След това намерете тръба с малко по-голям диаметър - равен на 58 мм. Тя трябва също да бъде нарязана на дължина 80 mm. По този начин получавате телескопичен вал, който е свързан с 2 болта (m6), разположени един срещу друг. На болтовете трябва да има гайки. По-долу е дадена диаграма на изработването на тримерна глава, която служи за закрепване на режещия инструмент.

В телескопичните тръби трябва да направите няколко дупки, така че да можете да регулирате височината на ножовете над земята.
По-добре е да направите нож в такъв дизайн, както е показано на фигурата.

Поради факта, че подвижни ножове на нитове са фиксирани на диска, те просто ще се отразят, когато срещнат камък или сух клон., Това ще спести вала и скоростната кутия от повреди, които могат да възникнат, когато уредът е заседнал.
Нитовете, които носят ножовете на диска, трябва да бъдат метални.
Диаметърът на диска (изработен от листова стомана 4 mm) трябва да бъде 180 mm. Ножовете са изработени от ленти с ширина 30 мм и дължина 120 мм, изрязани с мелница от режещ нож.
Нож за подстригване
Ако трябва да косите растенията с дебели или твърди стъбла, обичайната линия за риболов няма да се справи с тази задача. Затова не можете да правите без специален метален нож. Ножът за тримерите може да бъде закупен в специализиран магазин и можете да го направите сами, например, от стар диск от циркулярен трион (без скоба). Ножът е направен по следния начин.
- Първо, маркирането се прави на диска. "Венчелистчетата" могат да бъдат направени толкова, колкото желаете, например, две, три, четири или пет, както в това описание.

- Освен това, с помощта на мелницата се правят 2 радиални разфасовки върху маркировката.

- След радиални разфасовки е необходимо да свържете 2 вдлъбнатини, като използвате един и същ шлифовъчен механизъм, като направите надлъжен жлеб с достатъчна дълбочина, така че да можете да разкъсате нарязаната част на диска.

- Закрепете почти отрязаната част на детайла в закачалката и го прекъснете.

- Направете тази операция с всички "венчелистчета" на бъдещия нож. Всички неравности могат да се включат върху абразивно колело.
- Когато готовият детайл е готов, заострете едната страна на всяко "венчелистче" под ъгъл 45 °.

Домашна защитна обвивка
Ако направите домашна косачка, тогава определено се нуждаете от защитно покритие. Това ще ви спести очите, тялото и краката да бъдат ранени от малки камъчета и счупени парчета ножове, ако се счупят.
Покритието може да бъде направено от лист алуминий или тънка калай.
- Първо, в ъгъла на квадрат от метал, трябва да пробиете отвор с желания диаметър (в зависимост от вида на задвижването на устройството), като използвате корона.

- След това трябва да направите маркер за ключалки. Като основа, на която ще се завинти домашна защита, можете да използвате стандартния корпус от мелницата, ако направите тример от него.

- Захващайте заготовката със скоба и използвайте лентата и молива, за да изчертаете първия кръг. около 270 мм радиус, Центърът на кръга ще бъде ъгълът на детайла. Не е възможно да дадете точни препоръки относно радиуса, тъй като това зависи от диаметъра на инструмента за рязане, който ще използвате с машината. Ето защо първо решете кои ножове ще използвате и кое отклонение на линията ще бъде оптимално.

- След това изтеглете втората дъга (тя ще бъде завой), леко отклоняваща се от първата. В този случай, сантиметри по 5. По този начин измерихте височината на бъдещия щит. като цяло, височина на корпуса Препоръчва се да направите това, така че когато го поставите на земята, режещият инструмент не достига около 2 см.

- След маркирането на втората линия е необходимо да се изреже детайлът по него, като се използва халс за метал или електрическа мозайка с пила за метал.
- Освен това е необходимо да се направят радиални разфасовки (до първата дъга) и огънете получените части с клещи под ъгъл от 90 °.

- Освен това щитът е прикрепен към защитния капак на мелницата, режещият инструмент е монтиран и уредът е готов за работа.
По този начин е възможно да се произвежда и монтира защитно покритие върху тример, закупен в магазин, ако щитът се е разцепил по някаква причина. Охранителите във фабричния апарат са направени от пластмаса и често се счупят, ако не успеят да ударят тримерната глава към земята, за да удължат риболовната линия.

Отрежете колана
За по-удобна работа с тример, ако възнамерявате да обработвате голяма площ, покрита с трева, препоръчително е да използвате специален колан. Това устройство премахва умората от ръцете и гърбовете на оператора на косачката и значително опростява процеса в сравнение със същата работа, но без колан.
Коланите са рамо и раница, Рамото на колана е най-простото устройство и се състои от контур с две или едно капаче (карабина), с което е прикрепен към косачката. Пластмасовата плоча обикновено се прикрепя към втората карабина, предпазвайки страната на оператора от натиск с коса за подстригване.

Рамото на колана обикновено се нанася с тримери за светлина, с тегло 3-4 кг. За по-тежки единици е по-удобно да използвате раменни колани.

Коланът за тримерите може лесно да бъде поръчан онлайн или закупен в специализиран магазин,където се продават тези устройства и техните компоненти.
Цената за багажници за багаж започва от 250 рубли и повече.

Ако искате да го направите сами, тогава всяка домакиня, гледаща това устройство, може лесно да я зашие от импровизирани средства (стари колани и колани). Може да се наложи да купите катарами и карабини. Но все пак ви препоръчваме да закупите готов закачалка за раници и да не губите време и пари, за да направите по-лошо качество от готовата притурка.

/rating_off.png)


