Какво може да се направи от верижен трион със собствените ти ръце
Бензиновият трион е добър помощник при събирането на дърва за огрев, отрязване на дървета, грижа за градина и почистване на обрасъл парцел. Нейната основа е двигател с вътрешно горене, който се характеризира с компактен размер, надеждност, ниско тегло, добра мощност. Такива предимства на задвижването ви позволяват да създавате различни оригинални домашни инструменти от верижен триони: проходилка, мелница, сняг, косачка за косене на трева, дъскорезница, електрически генератор, картон, моторни шейни. Моторът е монтиран и на мотора, лодката, което прави тези превозни средства по-практични. В същото време занаятчиите често използват не само двигателя, но и други части от уреда. Трудността при преработката е в точното напасване на размера на събраното оборудване.
съдържание
- 1 Извънбордов двигател на базата на двигателя от бензинов трион
- 2 Машина за рязане на дъски
- 3 Домашен велосипед с мотор
- 4 Домашно косене на трева
- 5 Извършване на моторни шейни
- 6 Създаване на тример
- 7 Снегорин с бензинов двигател
- 8 Производство на мелници
- 9 Изграждане на картинг и бъгжи машини
- 10 Генераторът на електрическа енергия от двигателя с вътрешно горене от резачка
- 11 Мотоблок за домашна употреба
- 12 Селскостопански култиватор го направите сами
- 13 Петролът видя
Извънбордов двигател на базата на двигателя от бензинов трион
Да се направи извънбордов мотор на резачка не е трудно. Тинкингът се прави, както следва:
- отстранете гумата от триона;
- вместо това, използвайки специален адаптер, прикрепете към двигателя самоходно или фабрично монтирано винтово лостче;
- тогава цялата конструкция е фиксирана на лодката, така че витлото е потопена във вода под ъгъл.
Вместо адаптер, някои занаятчии монтирайте предавка, Възможният резултат от работата е показан на снимката по-долу.

За любителите на риболова домашно приготвеният лодка е икономичен вариант, който ви позволява значително да ускорите движението по водната повърхност на езерата, реките и езерата.
Машина за рязане на дъски
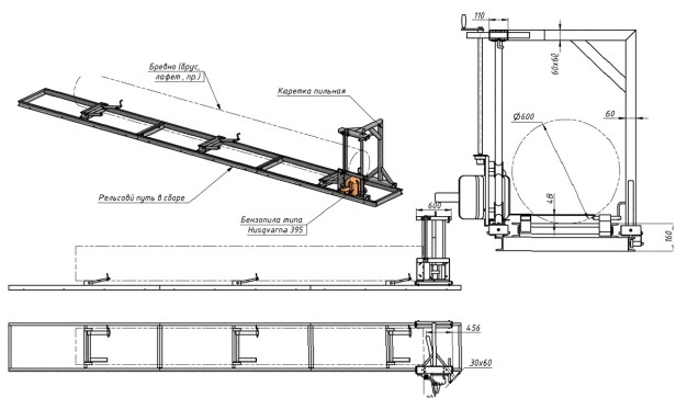
При изграждането на къщи и други сгради от трупи често трябва да ги разтварят на дървесината.Машината за дърводобив от резачка ви дава възможност да направите това възможно най-ефективно с добра точност на рязане. В същото време самият инструмент не изисква никакви промени. Нейната просто фиксиран в рамката направени например от метални ъгли или профилни тръби. Обработените регистрационни файлове се водят в ръководствата. Цялата структура е показана на диаграмата по-долу.

В домашна дъскорезна дървесина дървената греда не се движи: шейната с трион се движи на правилната височина (в зависимост от дебелината на дървения материал) с четири винта., Поради факта, че рамката се движи точно, рязането се извършва спретнато, разрезът е гладък. Създаденото устройство (вариант от него е представен на снимката по-долу) също ви позволява да виждате дъски и да подготвяте дърва без проблеми.

Малко минус е образуването на голям брой дървени стърготини. Това се дължи на значителната дебелина на веригата.
Домашен велосипед с мотор
Занаятчиите са изобретили различни варианти, как да превърнат велосипеда в мотопед. Тяхното значение е следното:
- моторът е взет;
- моторът с газов резервоар е прикрепен към багажника или рамката;
- предавателна кутия (с предавателно число 18 към 1) и специална предавка;
- са монтирани допълнителни амортисьори;
- сложи спирачката.
Вместо да използвате скоростната кутия две зъбни двойкисвързвайки се един с друг чрез велосипедна верига. Различни стари велосипеди често се вземат като основа (както е на снимката по-долу), а по-модерни (планински) модели се използват много по-рядко.

Обикновено мотоциклет с мотор от резачка се прави за развлечение: мотоциклетът се движи със скорост нормална.
Домашно косене на трева
Косачките за косене на трева са техника за почистване на тревата, Те се използват от собствениците на частни къщи и вили, за да дадат на парцелите привлекателен, добре поддържан вид. Фабрично направените модели са лесни за употреба, но на цена не са достъпни за всички. Косачката за косене на трева, произведена от резачка, ще бъде много по-евтина от марковите аналози. Капацитетът му е достатъчно за битови нужди.
Занаятчиите на дома събират домашно косене на трева от различни типове и възможности. Но всеки дизайн предвижда наличието на такива елементи:
- шофиране;
- рамка;
- автоматични писалки;
- колела;
- ножове;
- системи за управление;
- защитен корпус.
Производствен процес косачките се държат в следната последователност:
- заварете рамката с подходящ размер, например от метални ъгли от 25 до 25 мм;
- с помощта на болтове или заваряване, дръжките на железните тръби са прикрепени към рамката;
- монтирани на ъглите на рамковите колела;
- свалете дръжката и гумата от бензинов трион;
- завийте останалата част от инструмента към рамката с помощта на винтове и гайки, така че валът на скоростната кутия, обърнат надолу на 90 градуса, да е насочен надолу;

- разширете газовия кабел;
- Телескопичен вал се състои от две метални тръби, които след това се закрепват към скоростната кутия;
- да направят сами нож (например от ръчна пила) или да закупят фабричен продукт;
- използвайки болтове или заваряване, свържете ги с вала.
Ще се поберат детски колички колелаот старата кола. Ако използвате тръби с различни диаметри, можете да направите телескопична дръжка с възможност да регулирате нейната дължина - това увеличава удобството при работа.
ножове Има различни дизайни. Тяхната най-проста версия е представена на следната снимка.

Наличието на телескопичен вал ще ви позволи да регулирате височината на тревната покривка, оставена след косене.
Ножове от качествена стомана не се страхуват да се срещнат с малки камъни.Те са в състояние да косят дори тънки храсти. Самоизработената косачка е оборудвана с няколко занаятчии кош за трева кутия, благодарение на което практически няма изсечена трева на мястото.
Извършване на моторни шейни
Занаятчиите на дома успяха да направят моторни шейни от резачка. Машината се състои от следните структурни елементи:
- рамки;
- двигател с вътрешно горене (ICE) с мощност от около 5 к.с .;
- окачване с амортисьор;
- волан;
- седалка за пътници;
- ски или писти;
- системи за управление (съединител, газ).
Собственият снегомобил за производство може да бъде оборудван по желание ски или писти, Ако сложите ските, ще получите снегомобили, които ще бъдат подобни на извадката от оборудването, показано на снимката по-долу. Движението на такава машина ще се извърши чрез завъртане на винта. Сноумобилите са по-лесни за използване от снегомобилите.

При избора на песни важна точка е организирането на внимателен възел, предаващ въртящ момент към тях от двигателя. На създадения мотор за сняг, чийто вид е показан на снимката по-долу, ще трябва да инсталирате центробежен съединител с верига и колан.За да увеличите капацитета на задвижването на устройството, се препоръчва да се оборудва вал за гъсеница с зъбни колела с по-голям диаметър от двигателя.

Като волана Този елемент е подходящ за велосипед или скутер. Можете да го направите и от метални тръби.
Колкото по-мощен ще бъде инсталиран двигател, толкова по-голяма ще бъде способността на сглобения мотор за моторни шейни.
Създаване на тример
Треймер, като косачка, се използва за косене на трева върху парцел. Но мотокинът се използва за относително по-малки количества работа или за груб терен, каменист терен. А тример, направени от резачка, направени от себе си, ще бъде много по-евтино от фабриката си колега. Работата на това устройство е доста висока.
Най-простият вариант за създаване на косачки е да използвате специална фабрични дюзи за бензинов трион, работата с която е показана в следващото видео.
Снегорин с бензинов двигател
За да не разпръснете сняг с лопата през зимния сезон, е напълно възможно да направите снегопочистващо устройство от резачка. За практическото изпълнение на проекта е необходимо мотора около 3 кВт (4.1 к.с.), например от триона "Calm". Освен задвижването, снеговият вентилатор се състои от следните компоненти и части:
- входно отделение с винт с лопатки, разположени отвътре;
- автоматични писалки;
- рамки;
- сняг ежектор.
Всички тези възли са видими на следващата снимка.

Занаятчиите представиха моделите за колело и снегопочистване, оборудвани със сеялки. Последният вариант е по-прост по конструктивен начин за внедряване. Дизайнът на рамката и всмукателното отделение е показан на снимката по-долу.

Основните точки са изборът на двойка предавки и производството на добър шнек (показан на снимката по-долу), който ще се задвижва чрез верижно задвижване от мотор.

За вземане входящ корпус подходящи галванизирани стоманени листове. Селскостопанските ножове често са изработени от гъста гума. Пластичната канализационна тръба е подходяща като снегополагане.
Производство на мелници
Ъглова мелница - многофункционален инструмент, който е необходим при извършване на разнообразна работа. Независимо от наличието и разпространението си, занаятчиите направили българин от резачка (пробата е показана на снимката по-долу).
Дискът на такова оборудване, което се произвежда самостоятелно, няма да се върти с електродвигател, а с двигател с вътрешно горене от трион.

Събрание български с използването на специални инструменти за резачка е както следва:
- веригата и гумата се отстраняват от бензиновия трион;
- поставена върху шайбата на вала на предавката;
- вместо гума, те монтират и специална дюза с шайба, като преди това са сложили колан;
- опъвайте предавката на колана като верига;
- прикрепете защитното капаче;
- поставете диска.
Целият процес е показан подробно във видеоклипа по-долу.
Самостоятелно сглобеният български-бензореза ще ви помогне да изпълнявате много практически задачи. Капацитетът му е достатъчен за продуктивна работа върху бетона.
Изграждане на картинг и бъгжи машини
Картинг - Това е състезание за малки коли (карти), без тяло, еластично окачване на колелата. Тази машина е проектирана да се движи на плоска асфалтова повърхност, където тя може да достигне достатъчно висока скорост.

В къщи е напълно възможно да се съберат картони от резачка и такива части:
- колела;
- кормилна единица;
- рамка;
- спирачни и контролни системи.
Следващото видео съдържа подробен преглед на възможните варианти за домашно картиране.
Картите с двигател от бензинов трион са относително евтини. За децата това ще стане завладяващо забавление.
бебешка количка конструктивно и към местоназначение, подобно на картата, но те имат спиране. Тази функция ви позволява по-удобно да се движите на неравен терен (извън пътя).

Самоусъединяването на бъгито е подобно на изработването на карта (с изключение на окачването) и се извършва в следната последователност:
- заваръчна рамка;
- Направете например окачване на вида на усукване;
- да се направят кормилни части;
- събира суспендиране;
- монтиран волан и тяга;
- прикрепете колелата;
- сложи спирачката;
- поставете стола;
- фиксирайте двигателя.
За предаване на въртенето от мотора към колелото се използва верига или колан. Съответно се инсталират звездички или макари. Това, че колата работи по-тихо, ще подобри съществуващите бензинов шумозаглушител или направете нова. Има опции за домашни автомобили, които могат да достигнат скорости над 40 км / ч, така че трябва да шофирате внимателно, за да избегнете катастрофа.
Генераторът на електрическа енергия от двигателя с вътрешно горене от резачка
Повечето съвременни уреди са захранвани с електрическа енергия. Извън електропроводите, то се получава главно от електрически генератори. Такова преносимо оборудване с батерии се използва и в полеви условия, За да спестите пари, можете самостоятелно да направите генератор на верижни триони. Схематично, конструкцията му е представена по-долу.

На снимката по-горе, следните структурни елементи на преносим електрически генератор съответстват на номерата:
- бензин видя;
- редуктор на скоростите;
- задвижващ ремък;
- ниво на напрежение;
- електрически генератор;
- контролен панел;
- скоби;
- акцентиращи триони;
- закрепваща гайка (предназначена за закрепване към рамката на скоростната кутия);
- задвижваща макара
Самообслужвани мини-електроцентрали AC или DC генератори (например от кола на 12-14 V). Изходното напрежение и неговите други текущи характеристики зависят от него.
Мотоблок за домашна употреба
Motoblock е селскостопанска техника, която благодарение на възможността за монтиране на различни приспособления е способна да обработва и обработва почвата, като прави бразди и изпълнява други операции.По същество са мощни модели мини трактори. Произведената машина е скъпа, ще бъде по-евтино да струва на проходилка ръчно изработена верижна машина.

Монтажът на модула не е труден. Устройството е домашен мотоблок, показан във видеоклипа по-долу.
Има много конструктивни версии на мотоблок, направени от занаятчии. Трябва да изберете най-подходящата опция за наличните компоненти и функционалност.
Селскостопански култиватор го направите сами
Култиваторът е техника, разработена за разхлабване на почвения слой и отрязване на корените на плевелите в него. Работното тяло на звеното е ротационна мелница, Поради въртенето си култиваторът се движи по третираната зона.

Моторният култиватор е по-слаб от моторния блок. За втората има специална дюл за култивиране.
Култиваторът от собствен монтажен възел е подходящ за обработка на малка площ, Вариант на конструкцията на такова импровизирано оборудване се разглежда в следващото видео.
Петролът видя
Хиллер е високоспециализирана техника, която се използва падане на картофи, В същото време плевелите се отстраняват между редовете.
Съберете окуник от верижните триони лесно. Конструкцията му е показана на диаграмата по-долу.

Следните конструктивни елементи отговарят на цифровото обозначение на диаграмата:
- 1 - дръжка за управление на двигателя;
- 2 - кабел;
- 3.4, 7, 10 - звездички на зъбните колела;
- 5 - верига;
- 6-колело;
- 8 - дръжката;
- 9 - резервоар за гориво;
- 11 - монтиране на двигателя;
- 12 - платформа за двигателя;
- 13 - двигател с вътрешно горене;
- 14 - рамка;
- 15 - плуг (приспособление за хелир).
Работата на домашния хелир е показана по-късно във видеото.
В допълнение към разгледаните варианти, като основата можете да направите задвижването от бензиновия винт, със собствени ръце можете да направите ATV, мини хеликоптер, лебедка, дупка в ямата или лед., За повечето домашно производство е подходящ двигател с мощност от 2-3 kW (приблизително 2.7-4.1 к.с.), например от вериги "Штил", "Приятелство", "Урал". Но за хеликоптера ще ви трябва мотор с голям даден параметър. За да се установи необходимата специфична мощност, в този случай е необходимо да се извършат точни инженерни изчисления.
За преработката се препоръчва да се използва стар, евтин инструмент, така че в случай на бързо разбиване на създадения механизъм, той няма да доведе до специални финансови загуби.По-добре е да използвате модели, които са лесни за разбиране, и намирането на части върху тях, когато е необходима подмяна е лесно. По време на монтажа частите трябва да бъдат внимателно съединени, като се уверите, че те се прикрепят без проблеми. Предварително създадените чертежи ще улеснят и ускорят процеса. Във всеки случай едно домашно устройство трябва да е безопасно.

/rating_on.png)
/rating_off.png)


